Le Chœur,

Le bel ouvrage tertiaire signé par les artisans de la Loire.

Plus qu’un projet, une démarche architecturale et humaine portée par la CAPEB 42 pour préparer la ville de 2050.

Immeuble de bureaux avec conciergerie & rooftop
En vente & location

Lots de 148㎡ à 786㎡ par étage

Emplacement n°1

Au cœur du Technopôle, à deux pas du Zénith et du "Chaudron".

Bâtiment Bas Carbone

1er projet de la Loire certifié BREEAM Very Good en ossature bois.

Design de Services

Un lieu pensé pour le bien-être et le retour au présentiel.

Façade Sud-Ouest entrée du site
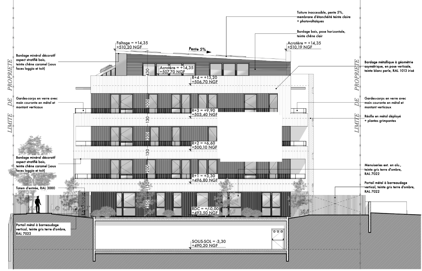
Agence Tassin & Réocreux

Une conception sobre, responsable et Low-Tech.

Signé par l’agence Tassin & Réocreux, Le Chœur privilégie les matériaux nobles : béton structurel et bois massif (CLT). Un véritable puits de carbone capté grâce à des dizaines de m³ de bois.

  • Lumière naturelle optimisée & volumétrie compacte.

  • Bardage métallique et ombrières pour une performance thermique naturelle.

  • Plateaux modulables et divisibles pour s'adapter à votre croissance.

Un lieu de transmission, d’hier à demain.

Implanté sur un site qui fut tour à tour église puis centre culturel, Le Chœur s’inscrit dans la continuité d’un lieu de partage. Depuis des décennies, cette adresse est le point de rencontre des artisans et des bâtisseurs de la Loire.

Nous honorons cette histoire en érigeant un bâtiment tourné vers l'avenir.


Bienvenue dans un lieu de vie, pas seulement de travail.

  • L'hospitalité au centre du projet.

  • Des lieux de rencontre à la demande.

  • Garage à vélos sécurisé, vestiaires et douches.

  • Une vue directe sur les tribunes du Stade Geoffroy Guichard pour vos événements.

Brut Équipé  : la liberté d'aménager, la sérénité du prêt-à-l'emploi.

Nos plateaux combinent le caractère brut des matières apparentes (bois, verre, acier) à une base technique de pointe déjà installée.

Inclus :

  • Pompe à chaleur réversible (chaud/froid)

  • CTA double flux

  • Cassettes plafonnières (1 unité pour 25m²)

Vous n'avez plus qu'à cloisonner selon vos envies.

Devenez propriétaire ou locataire au cœur du Technopôle.

786 m²

SURFACES

De 148 m² à 786 m² (plateau complet)

2 700 €

PRIX

De 2 700 € HT à 3 300 € HT / m².

45 places

STATIONNEMENT

45 places VL (hauteur adaptée aux véhicules d'artisans) + bornes électriques.

Venez vous projeter sur place.

 Une "bulle de ventes" vous accueille au 13 rue Camille de Rochetaillée pour une immersion totale dans le projet avant le lancement des travaux.


Contactez-nous

Pour recevoir le dossier complet, organiser une visite ou réserver un lot.

CAPEB LOIRE, pôle immobilier.
Guillaume Schreiner, administrateur CAPEB.

T : 06 52 87 21 11